Descrição
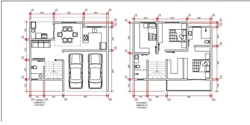
Sobrado Novo em Condomínio | 122 m² | Região Valorizada do Ecoville! Endereço: Rua Padre Jacinto Miensopust, 205 - Sobrado 2 - Curitiba, PRSituado na desejada região do Ecoville, esse sobrado em construção é ideal para quem busca qualidade de vida e uma localização estratégica! Localizado próximo à Universidade Positivo, UTFPR, Volvo, e ao Terminal do Campo Comprido, o imóvel oferece o equilíbrio perfeito entre tranquilidade e conveniência.Características do Imóvel:Área construída: 122 m²3 Quartos (sendo 1 suíte com closet)Sala ampla para 2 ambientesCozinha bem distribuídaÁrea de serviço/lavanderia2 vagas de garagem livresDestaques:Sobrado 2 Localizado do lado esquerdo na entrada do condomínioExcelente opção de investimento, aceita financiamento bancário, FGTS e carta de crédito Aproveite essa oportunidade! Entre em contato para agendar sua visita e conhecer seu novo lar com condições exclusivas. Referência: Código 1533 1533











