Descrição
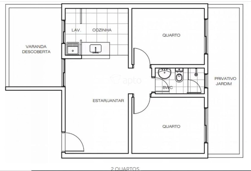
Apartamento térreo (garden) à venda, Residencial Califórnia no bairro Itaqui, pertinho da fábrica da Procópio, em Campo Largo. APARTAMENTO: Contendo 2 quartos, 1 banheiro, 1 vaga descoberta. Apartamento térreo com 2 espaços garden (cozinha e quarto). Garden muito oportuno para quem tem um pet e também queira fazer uma pequena horta. 1 vaga de garagem bem na entrada do bloco (vaga 55). Apartamento nunca foi habitado. Encontra-se no piso bruto (contra-piso). ESTRUTURA DO CONDOMÍNIO: Condomínio clube com várias áreas de lazer, como: churrasqueiras, academia, sala de cinema, piscina, playground, espaço pet, salão de jogos, salão de festas, quadra poliesportiva, bicicletário, mercado "super-market", etc. Pista de caminhada e churrasqueiras separadas e com pia e banheiro. Portaria 24h. Ano construção: 2021. Rua Maria Joaquina Vaz, 72. Bloco 10 - Apto. 107, vaga 55. Fica logo na entrada do Condomínio. Fácil acesso ao apartamento. Pertinho da fábrica da Procópio. Taxa de condomínio: R$ 336,00 (jan/26). Pode usar FGTS e/ou financiamento. Ótima opção para uso próprio mas também para investimento para locação. Ref. AP1676-CT CRECI-PR 20.621










